建築物省エネルギー法で求められる建築性能として、①外皮基準(断熱と日射遮蔽)と②一次エネルギー消費量基準の2つがあり、2020年を目途に新築においてクリアすることが求められています。
この基準の目的を考えてみると、①外皮基準は、健康を守るために定められています。冬期においては部屋間の温度差を軽減してヒートショックや低体温症のリスクを減らすこと、夏期においては熱中症のリスクを減らすことを念頭に決められています。一方、②一次エネルギー消費量基準は、通常の新築住宅よりは少ないエネルギーで暮らせることとしています。
つまり、省エネ法の目標は、省エネ性が高くて暖かい家ではなく、最低限の健康と省エネを確保することです。ですが、これが適合義務化されると、建築することが難しくなる住まいも出てきます。
例えば、中も外も土壁真壁の家で、断熱材が入れられない住宅です。
私の住む岐阜県では、まだまだ土壁の家が多くつくられ、地域によってはそれが独自の街の風景を作ってきました。

写真1:土壁で防耐火性能を向上させたうだつのあがる街並み(美濃市)
土壁は工期がかかり、コストも高額になりがちなため、近年ではあまり使われなくなり、せっこうボードなどで仕上げる家が増えています。ですが、防火、防音、蓄熱といった土壁の良さもありますし、古民家の修復の際にもこれらの素材や技術力が必要になってきます。
写真2は、森林文化アカデミーの自力建設で土壁施工をしている写真です。ここでは、竹小舞から荒壁の材料まで学生が探してきて、土壁の職人さんから、それぞれの特徴や、施工方法、伝統的な組み方などの指導の下、施工を行いました。最後は、砂漆喰で仕上げましたがこちらの指導は別の職人さんです。
このように、それに関連する様々な職種や素材業者などの活用により、地場産業に活力を与え、伝統の技術や素材を継承し、文化材修復の際にも活かされており、伝統的な工法がなくなるというのは様々な損失が生まれてしまいます。

写真2:職人さん指導のもと、いぶした竹で小舞を編み、荒土を塗っている学生
そこで、「気候風土適応住宅」という、①外皮基準(断熱、日射熱遮蔽)の適合義務を外すルートができました。②一次エネルギー基準は高効率な設備を入れることで比較的対応しやすいため、除外ルートはありません。
では、気候風土適応住宅とは、何でしょうか。言い換えれば「地域の特徴を活かした住まい」といえると思います。
まさに、これから、各地の建築に携わる実務者が考えていかなければならない住まいです。
ですが、間違ってはいけないのは、最初から除外ルートを検討するのではなく、まずは基準に適合したうえで、気候風土を活かした住まいがつくれないかを考えるべきです。最初に述べたように、外皮基準は健康を守る最低限の基準であるからです。
ですので、気候風土適応住宅ルートは、日常的に使用しない建物(茶室など)で線の細い躯体で仕上げたい場合や、地域の町並みの統一性から高性能サッシや枠の太い高性能建具ではなく繊細な建具で町並みに開きたい場合、昔からの地域の伝統の両面真壁の土壁の場合など、①外皮基準を満たすことが困難な場合の選択肢が増えたと考えるべきです。
私の携わった改修事例を挙げてみます。
省エネ法では、建物全体で温熱性能を考えることになっていますが、その場合、町並みに面するファサードや、庭園に面する外壁も断熱強化の必要が出てきます。もちろん断熱サッシを使用すれば解決ですが、伝統的なつくりになじまないこともあります。
その解決の考え方の一つが、断熱区画(ゾーニング断熱)を用いて、生活区間の温熱性能はしっかり確保する方法です。
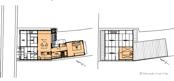
図1は、重要伝統的建造物群保存地区に隣接する建物で、コストの制約と、伝統的な街並みに面する通りの景観を配慮して、通り部分を断熱区画から外し、奥にある生活空間を断熱区画して、健康性を確保しつつ、通り部分は外皮性能を満たさない状況で改修を行った事例です。
図1のオレンジ色に塗られた部分に生活ゾーン(LDKと寝室、水廻り、それをつなぐ廊下)を計画し、このゾーンを囲うように間仕切り壁を含めて断熱施工しました。

図1:改修時のゾーニング(オレンジ色の部分が温熱性能を高めたゾーン)
写真3は街並み面する縁側ですが、断熱区画から外したため、当初設置された繊細な建具を残すことができ、生活空間の暖かさを確保しつつも、改修後も変わらない街並みの佇まいを残すことができました。

写真3:断熱区画から外して、通りには繊細な建具を残した例
改修前の断熱性能は熱損失係数Q値で6.97W/㎡Kでした。(Q値とは換気熱損失も含み、温度差1℃あたり、床面積1㎡あたりから逃げる熱の速さを示す値。数値が大きいほど熱が逃げやすいことを示しています。)現在の断熱基準の目安はQ値2.7W/㎡Kですので、2倍以上熱が逃げやすく、特に冬期には寒さの原因になっていました。
改修後の断熱性能Q値は3.27W/㎡Kとなりました。省エネ基準は満たしていませんが、これは無断熱ゾーンも含んだ建物全体の性能です。断熱ゾーン内の区画で計算すると、Q値2.65W/㎡Kとなり、健康を考えた際に最低限の性能である省エネ基準程度に向上していることがわかります。
このような区画断熱性能という考え方は、通常の省エネ基準ルートにはなじみませんが、気候風土適応住宅ルートを活用することで実現できます。今回の例は改修事例でしたが、もちろん新築にも応用できる考え方です。
気候風土適応住宅ルート(外皮基準適用除外)を選択した場合でも、住まい手の暮らしを考えて設計者がしっかりと適切な性能を検討すべきで、設計の可能性を拡げることにつながります。
*
辻 充孝(つじ みつたか)
岐阜県立森林文化アカデミー准教授
Ms建築設計事務所を経て現職。共著に「木の家リフォームを勉強する本」「省エネ・エコ住宅設計究極マニュアル」。2013年~環境共生住宅パッシブデザイン効果検討委員、2014年 岐阜県人口問題研究会「空き家等活用部会」議長、2015年 カミノハウスにて地域住宅賞奨励賞受賞(建築研究所主催)。一級建築士。
■岐阜からの便り バックナンバー
・岐阜からの便りVol.1 岐阜南部の夏の暮らし
・岐阜からの便りVol.2 岐阜南部の冬の暮らし
・岐阜からの便りVol.3 気候風土適用住宅